|
Tilting Scooter - Free Plan Details
BATTERY & DRIVE BOX CARRIER
Click on Drawing Images - Password is:
scooter


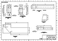
The drive gearbox and batteries are carried in a timber
structured carrier.
The carrier is detailed in 4 sheets - sheet 1 shows an
overview of the carrier assembly, its list of parts and
details of the first of the individual parts.
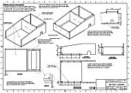
Sheet 2 details the
remaining components including the steel pivot
components - the main upper tilting frame of the scooter
is pivoted from the carrier body.

Sheets 3 and 4
describe the build sequence for the timber frame and the
assembly of the pivot and foot rest components to the
carrier body.
© 2005 - 2007, BFF
Design Ltd
|