|
Tilting Scooter - Free Plan Details
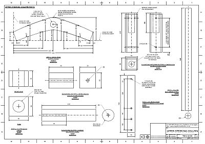
UPPER STEERING COLUMN
Click on Drawing Images - Password is:
scooter


Simple, mainly
timber, steering column and handle bars.
Sheet 1 shows the
assembly and lists the parts required. Assembly notes
are also included on this sheet. External, isometric and
sectional views are used to illustrate the construction
of the steering column.
Sheet 2 details the
made parts. These use timber dowel, plywood and timber
block. Two steel straps are used to secure the upper
column to the lower steering column.
The handle bars accept the
standard hand operated brake lever to operate the front
disc brake. The speed control lever is also mounted on
the handle bars.
© 2005 - 2007, BFF
Design Ltd
|