|
Tilting Scooter - Free Plan Details
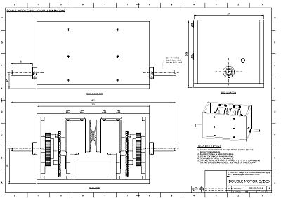
DRIVE BOX
Click on Drawing Images - Password is:
scooter
The
drive gearbox is detailed over 8 drawing sheets. The
first four describe the assembly and its components and
the procedure to follow to put the box together from the
made and bought parts. A list of parts is included which
identifies all the parts including motors, bearings,
gears etc.
 

The detailed
dimensions and materials for the steel shafts and
required modifications to the bought chain sprockets and
spur gears are detailed on a further single sheet.

The final three
sheets describe the build of the gearbox's timber
casing. They detail the sizes of the cut parts and go on
to describe in detail the important bonding/construction
sequence by which the proper shaft alignments and center
distances are set.

The drawings here are for the
500W double motor gearbox without internal brakes. The
structure of the drawing sets for the single motor and
braked versions is similar to those shown.
The drive box
covers drawing can be seen
here.
© 2005 - 2007, BFF
Design Ltd
|